5階は現在募集がありません
2フロア募集区画あり

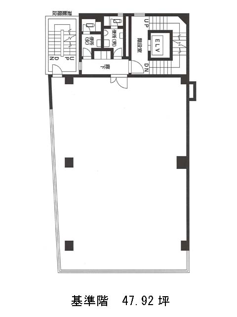
桜井ビル 5階

前の写真 次の写真

物件概要

物件番号

388-00101-30

物件名

桜井ビル

所在地

面積

47.92坪

賃料(共益費含)


入居日

募集終了

保証金

礼金

更新料

償却費

竣工

1977年10月

構造

SRC

規模

地上9階/地下1階

トイレ

男女別

空調

個別空調

エレベーター

セキュリティ

駐車場

耐震

旧耐震基準

基準階天井高

空室延床面積

95.84坪

最寄駅

情報更新日

2025/08/26

桜井ビルのテナント募集中区画

階数 面積 賃料(共益費含む) 保証金 入居可能日 検討リスト 詳細
3 47.92坪 737,968円/月(15,400円/坪) 316万円
4 47.92坪 737,968円/月(15,400円/坪) 316万円
…新着物件

アクセス

桜井ビルの物件情報

桜井ビル(千代田区麹町)は麹町駅(2番出口)から徒歩1分の賃貸オフィスです。
2011年にリニューアル工事を完了しました。白い外壁の間を通るライン上の窓がきちんとした印象の外観です。ワンフロアは約50坪、室内は長方形が確保された間取りで、柱が窓際にありますのでレイアウトがしやすいでしょう。エレベーターと男女別トイレは室外にありますので、室内スペースを有効に使えます。その他の設備としてOAフロア、個別空調が備えられています。隣には郵便局があり、コンビニ・スーパー・飲食店の充実した新宿通りにもすぐに出られる利便性が魅力の立地です。
桜井ビルは麹町駅(2番出口)の他に半蔵門駅(2番出口)徒歩6分、永田町駅(9b番出口)徒歩8分で利用も可能です。

近隣のエリア・駅から探す