ミツリ麹町ビル 2階 201
物件概要
物件番号
388-00145-20物件名
ミツリ麹町ビル所在地
- 東京都千代田区麹町2-12-6
- アクセスマップ
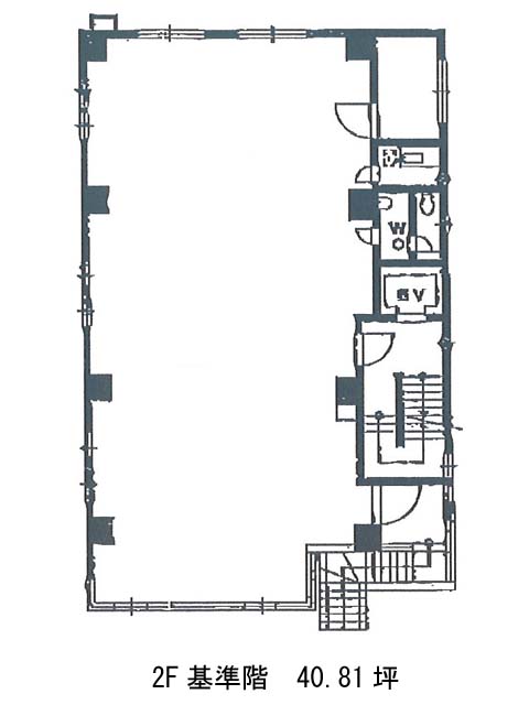
面積
38.98坪賃料(共益費含)
月額535,973円(13,750円/坪)
入居日
相談保証金
2,923,500円礼金
1ケ月更新料
なし償却費
1ケ月竣工
1984年構造
RC規模
地上5階トイレ
男女共用空調
個別空調エレベーター
有セキュリティ
駐車場
無耐震
新耐震基準基準階天井高
空室延床面積
38.98坪情報更新日
2025/11/07ミツリ麹町ビルのテナント募集中区画
| 階数 | 面積 | 賃料(共益費含む) | 保証金 | 入居可能日 | 検討リスト | 詳細 |
|---|---|---|---|---|---|---|
| 2 | 38.98坪 | 535,973円/月(13,750円/坪) | 292万円 | 相談 |
…新着物件
ミツリ麹町ビルのアクセス
ミツリ麹町ビルの物件情報
ミツリ麹町ビル(千代田区麹町)は半蔵門駅(3a番出口)から徒歩2分の賃貸オフィスです。ミツリ麹町ビルは半蔵門駅(3a番出口)の他に麹町駅(3番出口)徒歩5分、永田町駅(9b番出口)徒歩11分で利用も可能です。

