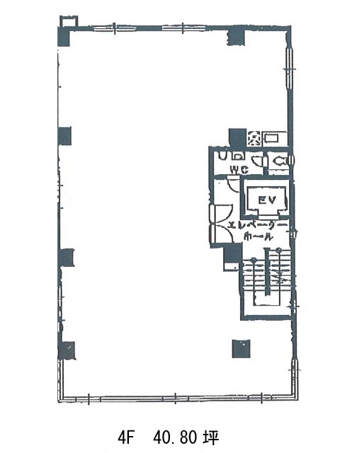
ミツリ麹町ビルのテナント募集中区画
| 階数 | 面積 | 賃料(共益費含む) | 保証金 | 入居可能日 | 検討リスト | 詳細 |
|---|---|---|---|---|---|---|
| 2 | 38.98坪 | 535,973円/月(13,750円/坪) | 292万円 | 相談 |
…新着物件
アクセス
ミツリ麹町ビルの物件情報
ミツリ麹町ビル(千代田区麹町)は半蔵門駅(3a番出口)から徒歩2分の賃貸オフィスです。ミツリ麹町ビルは半蔵門駅(3a番出口)の他に麹町駅(3番出口)徒歩5分、永田町駅(9b番出口)徒歩11分で利用も可能です。

