エミナビル 2階新着
物件概要
物件番号
388-00150-30物件名
エミナビル所在地
- 東京都千代田区麹町1-8-7
- アクセスマップ
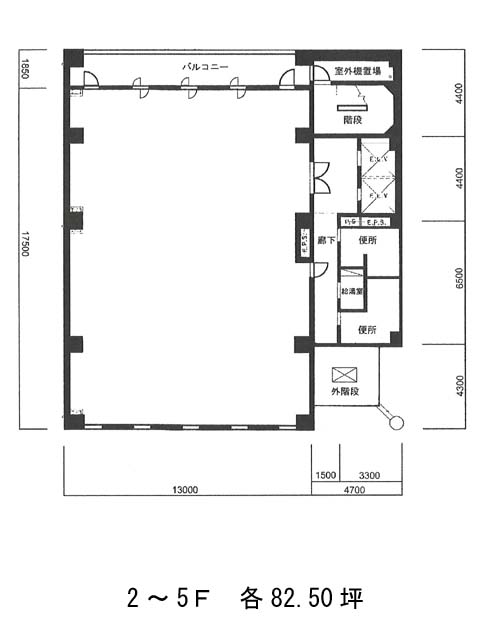
面積
82.50坪賃料(共益費含)
:応相談応相談
入居日
2026年3月上旬保証金
応相談礼金
なし更新料
なし償却費
なし竣工
1994年2月構造
SRC規模
地上6階/地下1階トイレ
男女別空調
個別空調エレベーター
有セキュリティ
有駐車場
有耐震
新耐震基準基準階天井高
2600mm空室延床面積
82.50坪情報更新日
2026/03/03エミナビルのテナント募集中区画
| 階数 | 面積 | 賃料(共益費含む) | 保証金 | 入居可能日 | 検討リスト | 詳細 |
|---|---|---|---|---|---|---|
| 2 | 82.50坪 | 応相談(応相談) | 応相談 | 2026年3月上旬 |
…新着物件
エミナビルのアクセス
エミナビルの物件情報
エミナビル(千代田区麹町)は半蔵門駅(4番出口)から徒歩2分の賃貸オフィスです。1994年竣工、地上6階建て。ブラウンを基調とした外観で、ブロックタイルと御影石を使用したホテルライクなデザインです。基準階は約83坪、室内はきれいな長方形を確保し、柱もありませんのでレイアウトの自由度が高いでしょう。設備面は、エレベーター2基、個別空調、OAフロア、給湯室、男女別トイレ等です。駐車場もございますので、車でのアクセスがしやすい環境です。周辺は落ち着いた雰囲気のオフィス街で、近くの半蔵門駅通りには飲食店が充実していますので、ランチには困らないでしょう。エミナビルは半蔵門駅(4番出口)の他に麹町駅(3番出口)徒歩7分、永田町駅(4番出口)徒歩12分で利用も可能です。

