5階は現在募集がありません
1フロア募集区画あり

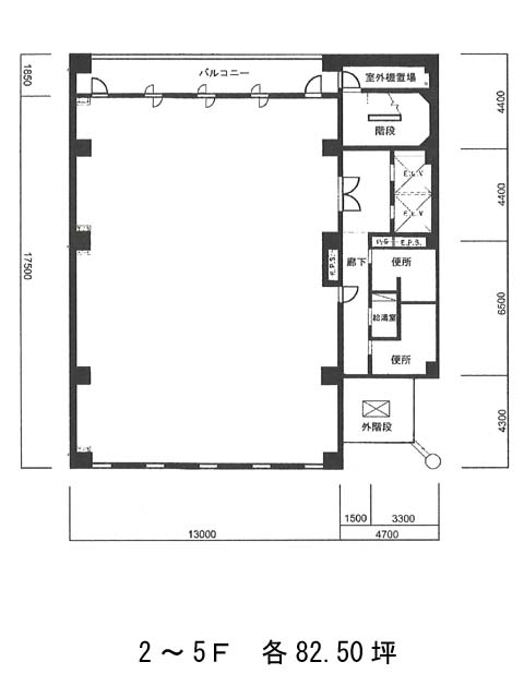
エミナビル 5階

前の写真 次の写真

物件概要

物件番号

388-00150-60

物件名

エミナビル

所在地

面積

82.50坪

賃料(共益費含)


入居日

募集終了

保証金

礼金

更新料

償却費

竣工

1994年2月

構造

SRC

規模

地上6階/地下1階

トイレ

男女別

空調

個別空調

エレベーター

セキュリティ

駐車場

耐震

新耐震基準

基準階天井高

2600mm

空室延床面積

82.50坪

最寄駅

情報更新日

2026/03/03

エミナビルのテナント募集中区画

階数 面積 賃料(共益費含む) 保証金 入居可能日 検討リスト 詳細
2 82.50坪 応相談(応相談) 応相談 2026年3月上旬
…新着物件

エミナビルのアクセス

エミナビルの物件情報

エミナビル(千代田区麹町)は半蔵門駅(4番出口)から徒歩2分の賃貸オフィスです。
1994年竣工、地上6階建て。ブラウンを基調とした外観で、ブロックタイルと御影石を使用したホテルライクなデザインです。基準階は約83坪、室内はきれいな長方形を確保し、柱もありませんのでレイアウトの自由度が高いでしょう。設備面は、エレベーター2基、個別空調、OAフロア、給湯室、男女別トイレ等です。駐車場もございますので、車でのアクセスがしやすい環境です。周辺は落ち着いた雰囲気のオフィス街で、近くの半蔵門駅通りには飲食店が充実していますので、ランチには困らないでしょう。
エミナビルは半蔵門駅(4番出口)の他に麹町駅(3番出口)徒歩7分、永田町駅(4番出口)徒歩12分で利用も可能です。

近隣のエリア・駅から探す