麹町シルクビル 1階
物件概要
物件番号
388-00273-10物件名
麹町シルクビル所在地
- 東京都千代田区麹町3-5
- アクセスマップ
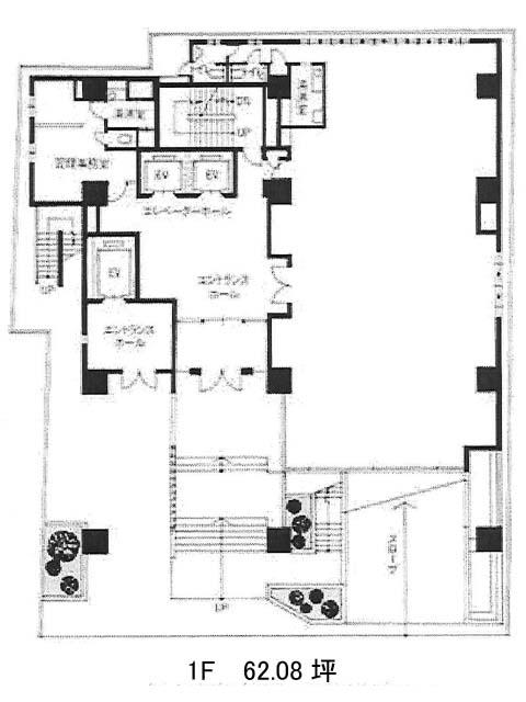
面積
62.08坪賃料(共益費含)
月額1,256,499円(20,240円/坪)
入居日
即保証金
9,500,000円礼金
なし更新料
なし償却費
なし竣工
1992年8月構造
SRC規模
地上9階/地下2階トイレ
男女別空調
個別空調エレベーター
有セキュリティ
有駐車場
有耐震
新耐震基準基準階天井高
2640mm空室延床面積
62.08坪情報更新日
2026/02/06麹町シルクビルのテナント募集中区画
| 階数 | 面積 | 賃料(共益費含む) | 保証金 | 入居可能日 | 検討リスト | 詳細 |
|---|---|---|---|---|---|---|
| 1 | 62.08坪 | 1,256,499円/月(20,240円/坪) | 950万円 | 即 |
…新着物件
麹町シルクビルのアクセス
麹町シルクビルの物件情報
麹町シルクビル(千代田区麹町)は麹町駅(1番出口)から徒歩3分の賃貸オフィスです。1992年竣工で、新耐震基準を満たした地上9階建てのオフィスビルです。エレベーターは2基設置されています。基準階面積は約130坪、フリーアクセス床となっているので、配線しやすく、光ケーブルを引き込み済みです。室内は綺麗に整形された長方形のため様々なレイアウトに対応できそうです。また駐車場が併設されており、車の利用もしやすいでしょう。徒歩圏内にはコンビニエンスストアやカフェ、飲食店が営業されているエリアですので、利便性が高いです。麹町シルクビルは麹町駅(1番出口)の他に半蔵門駅(1番出口)徒歩4分、永田町駅(9b番出口)徒歩6分で利用も可能です。

