KY三番町ビル 1階
物件概要
物件番号
390-00027-10物件名
KY三番町ビル所在地
- 東京都千代田区三番町1
- アクセスマップ
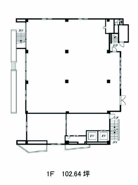
面積
102.64坪賃料(共益費含)
月額2,032,272円(19,800円/坪)
入居日
即保証金
14,780,160円礼金
なし更新料
なし償却費
なし竣工
1984年8月構造
SRC規模
地上8階/地下1階トイレ
男女別空調
個別空調エレベーター
有セキュリティ
有駐車場
有耐震
新耐震基準基準階天井高
2600mm空室延床面積
102.64坪情報更新日
2026/03/03KY三番町ビルのテナント募集中区画
| 階数 | 面積 | 賃料(共益費含む) | 保証金 | 入居可能日 | 検討リスト | 詳細 |
|---|---|---|---|---|---|---|
| 1 | 102.64坪 | 2,032,272円/月(19,800円/坪) | 1,478万円 | 即 |
…新着物件
KY三番町ビルのアクセス
KY三番町ビルの物件情報
KY三番町ビル(千代田区三番町)は半蔵門駅(5番出口)から徒歩7分の賃貸オフィスです。1984年竣工で地上8階建てのビルです。新耐震基準を満たしたおり、安心してご入居いただけます。エントランスやエレベーターホールは明るく、エレベーターは2基設置。基準階面積は約130坪。フリーアクセス床となっているので、配線しやすく、光ケーブルを引き込み済みですので、インターネットの契約はスムーズに行うことができます。機械警備と有人管理のため安心の管理体制になっています。徒歩圏内にはコンビニエンスストアや公園がございます。KY三番町ビルは半蔵門駅(5番出口)の他に九段下駅(1番出口)徒歩11分、市ヶ谷駅(A3番出口)徒歩11分で利用も可能です。

