7階は現在募集がありません
1フロア募集区画あり

KY三番町ビル 7階

前の写真 次の写真

物件概要

物件番号

390-00027-40

物件名

KY三番町ビル

所在地

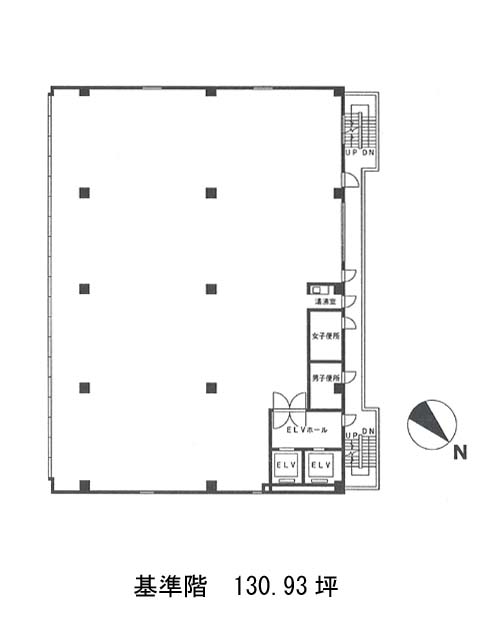
面積

130.93坪

賃料(共益費含)


入居日

募集終了

保証金

礼金

更新料

償却費

竣工

1984年8月

構造

SRC

規模

地上8階/地下1階

トイレ

男女別

空調

個別空調

エレベーター

セキュリティ

駐車場

耐震

新耐震基準

基準階天井高

2600mm

空室延床面積

102.64坪

最寄駅

情報更新日

2026/03/03

KY三番町ビルのテナント募集中区画

階数 面積 賃料(共益費含む) 保証金 入居可能日 検討リスト 詳細
1 102.64坪 2,032,272円/月(19,800円/坪) 1,478万円
…新着物件

KY三番町ビルのアクセス

KY三番町ビルの物件情報

KY三番町ビル(千代田区三番町)は半蔵門駅(5番出口)から徒歩7分の賃貸オフィスです。
1984年竣工で地上8階建てのビルです。新耐震基準を満たしたおり、安心してご入居いただけます。エントランスやエレベーターホールは明るく、エレベーターは2基設置。基準階面積は約130坪。フリーアクセス床となっているので、配線しやすく、光ケーブルを引き込み済みですので、インターネットの契約はスムーズに行うことができます。機械警備と有人管理のため安心の管理体制になっています。徒歩圏内にはコンビニエンスストアや公園がございます。
KY三番町ビルは半蔵門駅(5番出口)の他に九段下駅(1番出口)徒歩11分、市ヶ谷駅(A3番出口)徒歩11分で利用も可能です。

近隣のエリア・駅から探す