2階は現在募集がありません
3フロア募集区画あり

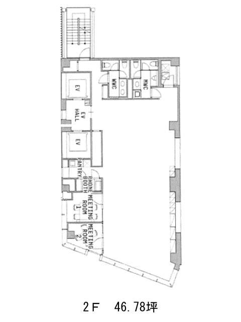
Bizflex神田 2階

前の写真 次の写真

物件概要

物件番号

403-00311-1

物件名

Bizflex神田

所在地

面積

46.78坪

賃料(共益費含)


入居日

募集終了

保証金

礼金

更新料

償却費

竣工

2024年1月

構造

S造

規模

地上12階

トイレ

男女別

空調

個別空調

エレベーター

セキュリティ

駐車場

耐震

新耐震基準

基準階天井高

3600mm

空室延床面積

139.59坪

最寄駅

情報更新日

2026/02/06

Bizflex神田のテナント募集中区画

階数 面積 賃料(共益費含む) 保証金 入居可能日 検討リスト 詳細
3 46.53坪 応相談(応相談) 応相談
6 46.53坪 応相談(応相談) 応相談
7 46.53坪 応相談(応相談) 応相談
…新着物件

Bizflex神田のアクセス

Bizflex神田の物件情報

Bizflex神田(千代田区神田須田町)は神田駅(6番出口)から徒歩3分の賃貸オフィスです。
2024年1月竣工、地上12階建ての新築ビルです。貸し室は46坪程度のものがそろい、中規模のオフィスをお探しの方によいでしょう。天井高が3600㎜(一部2700㎜)となり、開放感のある室内になるでしょう。セキュリティとして機械警備が導入されており、オフィスは24時間入退館可能です。EV・個別パッケージ空調・OAフロア・非常用発電機・各階専用Wi-Fi・ゲスト用Wi-Fiといった充実の設備仕様をしています。
Bizflex神田は神田駅(6番出口)の他に淡路町駅(A3番出口)徒歩3分、小川町駅(A3番出口)徒歩3分で利用も可能です。

近隣のエリア・駅から探す