3階は現在募集がありません
ステージ内神田ビル 3階
物件概要
ステージ内神田ビルのテナント募集中区画
現在、空室がございません。
ステージ内神田ビルのアクセス
ステージ内神田ビルの物件情報
ステージ内神田ビル(千代田区内神田)は大手町駅(C2b番出口)から徒歩6分の賃貸オフィスです。複数路線・複数駅が利用可能なエリアに立地し、都心各所へのアクセスにも柔軟に対応できる当ビル。駅からの距離は若干ありますが、そのぶん周囲は落ち着きがあり、静かなワークプレイスを求める企業にとっては好環境といえるでしょう。
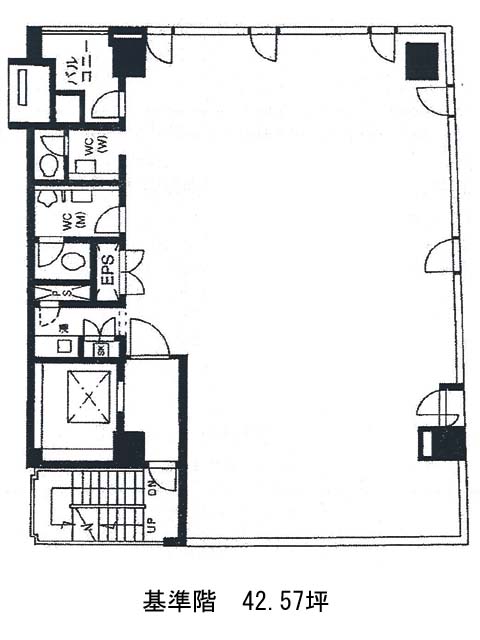
外観は端正なタイル張りで、すっきりとした印象。貸室は約43坪の整形区画で、柱のない構造が特徴です。無柱空間のためレイアウトの自由度が高く、人数構成や業務内容に合わせた最適な空間づくりが可能です。
ビル内には男女別トイレや給湯スペースも整備されており、機能面でも安心感あり。働きやすさと使い勝手を両立した、実直な中小規模オフィスです。ステージ内神田ビルは大手町駅(C2b番出口)の他に小川町駅(B6番出口)徒歩6分、新御茶ノ水駅(B6番出口)徒歩6分で利用も可能です。

