塩崎ビル 2階
物件概要
物件番号
429-00016-70物件名
塩崎ビル所在地
- 東京都千代田区平河町2-7-1
- アクセスマップ
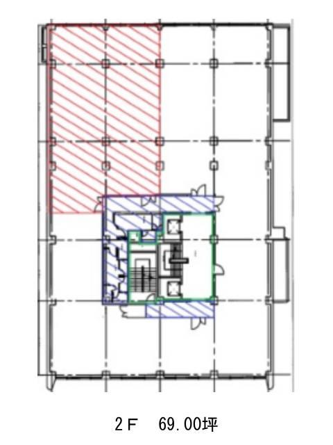
面積
69.00坪賃料(共益費含)
月額1,897,500円(27,500円/坪)
入居日
2026年1月下旬保証金
8,694,000円礼金
なし更新料
なし償却費
なし竣工
1963年9月構造
SRC規模
地上7階/地下2階トイレ
男女別空調
個別空調エレベーター
有セキュリティ
有駐車場
有耐震
耐震補強済み基準階天井高
空室延床面積
69.00坪情報更新日
2025/10/27塩崎ビルのテナント募集中区画
| 階数 | 面積 | 賃料(共益費含む) | 保証金 | 入居可能日 | 検討リスト | 詳細 |
|---|---|---|---|---|---|---|
| 2 | 69.00坪 | 1,897,500円/月(27,500円/坪) | 869万円 | 2026年1月下旬 |
…新着物件
アクセス
塩崎ビルの物件情報
塩崎ビル(千代田区平河町)は永田町駅(4番出口)から徒歩1分の賃貸オフィスです。
1963年竣工と少し古い物件ですが、青山通りに面しており視認性も高く、地上7階建てのオフィスビルです。耐震補強工事を実施しているので、安心してご入居いただけます。貸室内はフリーアクセス床となっているので、配線しやすいフロアです。トイレは男女別の設置となっており、エレベーターは2基設置されています。1階にはカフェがテナントとして入っているので、食事や打合せの際に便利でしょう。徒歩圏内にはコンビニエンスストアや銀行がございます。
塩崎ビルは永田町駅(4番出口)の他に赤坂見附駅(D番出口)徒歩6分、半蔵門駅(1番出口)徒歩9分で利用も可能です。

