コスモス浅草橋酒井ビルのテナント募集中区画
| 階数 | 面積 | 賃料(共益費含む) | 保証金 | 入居可能日 | 検討リスト | 詳細 |
|---|---|---|---|---|---|---|
| 2 | 48.93坪 | 861,168円/月(17,600円/坪) | 626万円 | 即 |
…新着物件
アクセス
コスモス浅草橋酒井ビルの物件情報
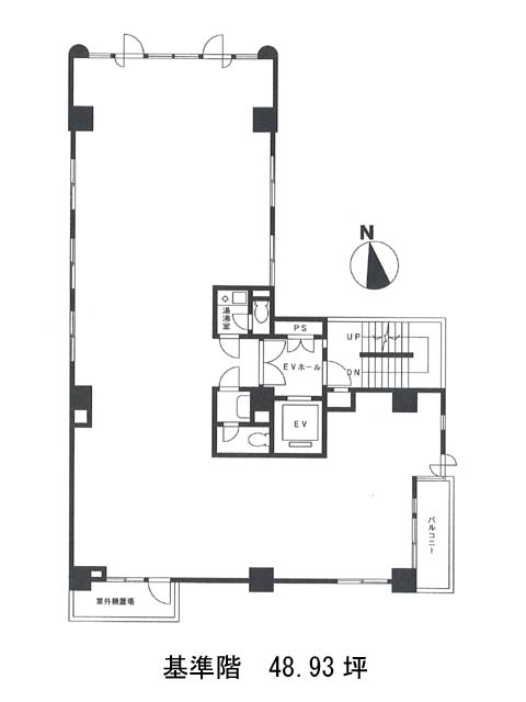
コスモス浅草橋酒井ビル(台東区浅草橋)は浅草橋駅(A4番出口)から徒歩3分の賃貸オフィスです。1990年竣工、地上8階建ての鉄骨鉄筋コンクリート造です。全体的にガラスを多く配置してあり、大通りに面していますので、採光が望めそうです。また、落ち着いた色合いの重厚感のある外観となっております。室内は、基準階が約49坪と広々としており、L字型の空間です。柱がないため、レイアウトがしやすいでしょう。設備面は、男女別トイレ、個別空調です。機械警備も導入しております。エレベーターは1基。機械式立体駐車場があります。コスモス浅草橋酒井ビルは浅草橋駅(A4番出口)の他に馬喰町駅(6番出口)徒歩8分、蔵前駅(A1番出口)徒歩9分で利用も可能です。

