小沢ビル 3階
物件概要
物件番号
559-00063-22物件名
小沢ビル所在地
- 東京都台東区浅草橋2-20-11
- アクセスマップ
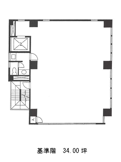
面積
34.00坪賃料(共益費含)
月額411,400円(12,100円/坪)
入居日
即保証金
2,244,000円礼金
なし更新料
新1ケ月償却費
2ケ月竣工
確認中構造
SRC規模
地上7階トイレ
男女共用空調
エレベーター
有セキュリティ
駐車場
無耐震
確認中基準階天井高
空室延床面積
34.00坪情報更新日
2025/12/05小沢ビルのテナント募集中区画
| 階数 | 面積 | 賃料(共益費含む) | 保証金 | 入居可能日 | 検討リスト | 詳細 |
|---|---|---|---|---|---|---|
| 3 | 34.00坪 | 411,400円/月(12,100円/坪) | 224万円 | 即 |
…新着物件
小沢ビルのアクセス
小沢ビルの物件情報
小沢ビル(台東区浅草橋)は浅草橋駅(西口)から徒歩4分の賃貸オフィスです。小沢ビルは浅草橋駅(西口)の他に馬喰町駅(6番出口)徒歩10分、蔵前駅(A1番出口)徒歩11分で利用も可能です。

