8階は現在募集がありません
柳橋ファースト 8階
物件概要
柳橋ファーストのテナント募集中区画
現在、空室がございません。
柳橋ファーストのアクセス
柳橋ファーストの物件情報
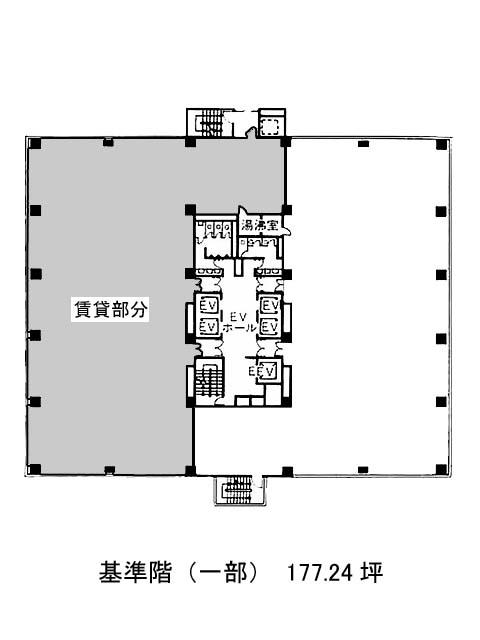
柳橋ファースト(台東区柳橋)は浅草橋駅(A6番出口)から徒歩6分の賃貸オフィスです。1987年竣工、地上12階地下1階建ての鉄骨鉄筋コンクリート造です。タイル張りの外観で、落ち着いた色合いのため重厚感があります。大きい窓がたくさん並んでいますので、室内を明るくしてくれそうです。ビルの裏には隅田川が流れていますので、自然を感じられる場所でもあります。また、エントランスやホールは管理が行き届いており、清潔感がありますので来客に好印象でしょう。室内は基準階が約350坪と大型オフィスとなっております。募集時期によっては分割での募集も行っております。柳橋ファーストは浅草橋駅(A6番出口)の他に蔵前駅(A1番出口)徒歩7分、馬喰町駅(6番出口)徒歩11分で利用も可能です。

