5階は現在募集がありません
1フロア募集区画あり
柳橋ファースト 5階
物件概要
物件番号
570-00001-80物件名
柳橋ファースト所在地
- 東京都台東区柳橋2-19-6
- アクセスマップ
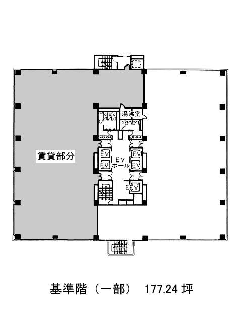
面積
177.24坪賃料(共益費含)
−入居日
募集終了保証金
−礼金
−更新料
−償却費
−竣工
1987年5月構造
SRC規模
地上12階/地下1階トイレ
男女別空調
個別空調エレベーター
有セキュリティ
有駐車場
有耐震
新耐震基準基準階天井高
2500~3000(1F)mm空室延床面積
246.06坪情報更新日
2025/11/07柳橋ファーストのテナント募集中区画
| 階数 | 面積 | 賃料(共益費含む) | 保証金 | 入居可能日 | 検討リスト | 詳細 |
|---|---|---|---|---|---|---|
| 1 | 246.06坪 | 応相談(応相談) | 応相談 | 即 |
…新着物件
アクセス
柳橋ファーストの物件情報
柳橋ファースト(台東区柳橋)は浅草橋駅(A6番出口)から徒歩6分の賃貸オフィスです。1987年竣工、地上12階地下1階建ての鉄骨鉄筋コンクリート造です。タイル張りの外観で、落ち着いた色合いのため重厚感があります。大きい窓がたくさん並んでいますので、室内を明るくしてくれそうです。ビルの裏には隅田川が流れていますので、自然を感じられる場所でもあります。また、エントランスやホールは管理が行き届いており、清潔感がありますので来客に好印象でしょう。室内は基準階が約350坪と大型オフィスとなっております。募集時期によっては分割での募集も行っております。柳橋ファーストは浅草橋駅(A6番出口)の他に蔵前駅(A1番出口)徒歩7分、馬喰町駅(6番出口)徒歩11分で利用も可能です。

