4階は現在募集がありません
ザ・パークレックス浅草橋 4階
物件概要
ザ・パークレックス浅草橋のテナント募集中区画
現在、空室がございません。
アクセス
ザ・パークレックス浅草橋の物件情報
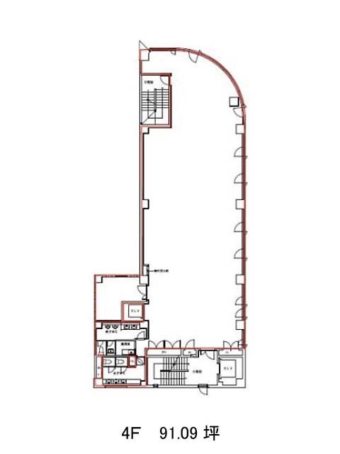
ザ・パークレックス浅草橋(台東区柳橋)は浅草橋駅(A1番出口)から徒歩1分の賃貸オフィスです。1990年竣工、地上8階地下1階建てのビルです。角地に建ち、視認性が高いでしょう。丸みを帯びた外壁が特徴的です。基準階面積は91.89坪。支柱が無いすっきりとした空間は、機器やデスクの配置がしやすいでしょう。設備仕様として、EV2基・個別空調・男女別トイレ・給湯室がそろいます。窓面が多く、十分な採光がとり入れられるでしょう。江戸通り沿いに建ち、周辺は中層階のビルが建ち並ぶエリアです。建物1階にコンビニが入居しており、ランチにご利用頂けるでしょう。ザ・パークレックス浅草橋は浅草橋駅(A1番出口)の他に馬喰町駅(6番出口)徒歩5分、東日本橋駅(出口)徒歩8分で利用も可能です。

