6階は現在募集がありません
1フロア募集区画あり

京橋山本ビル 6階

前の写真 次の写真

物件概要

物件番号

633-00178-30

物件名

京橋山本ビル

所在地

面積

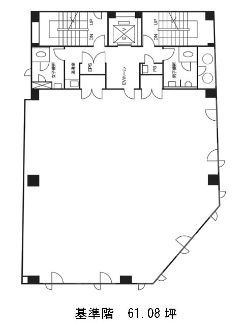
61.08坪

賃料(共益費含)


入居日

募集終了

保証金

礼金

更新料

償却費

竣工

1986年3月

構造

規模

地上9階/地下1階

トイレ

男女別

空調

個別空調

エレベーター

セキュリティ

駐車場

耐震

新耐震基準

基準階天井高

空室延床面積

61.08坪

最寄駅

情報更新日

2026/02/09

京橋山本ビルのテナント募集中区画

階数 面積 賃料(共益費含む) 保証金 入居可能日 検討リスト 詳細
8 61.08坪 応相談(応相談) 応相談 2026年3月上旬
…新着物件

京橋山本ビルのアクセス

京橋山本ビルの物件情報

京橋山本ビル(中央区京橋)は宝町駅(A1番出口)から徒歩1分の賃貸オフィスです。
東京駅からも徒歩10分で、大変便利な立地になっております。昭和通りに面した角地に建つ窓の多いデザインのビルで、南と西に開けた立地で、採光の良さが期待できます。61.08坪の基準階は、正方形に近い柱が邪魔をしない配置になっていて、レイアウトしやすい間取りになっています。室外に男女別トイレと給湯室がついていて、2015年にリニューアル済みです。ワンフロアーワンテナントなので、専用状態で使えます。
京橋山本ビルは宝町駅(A1番出口)の他に京橋駅(4番出口)徒歩4分、銀座一丁目駅(10番出口)徒歩6分で利用も可能です。

近隣のエリア・駅から探す