京橋山本ビル 8階
物件概要
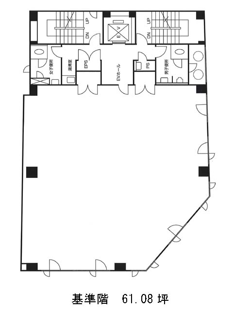
京橋山本ビルのテナント募集中区画
| 階数 | 面積 | 賃料(共益費含む) | 保証金 | 入居可能日 | 検討リスト | 詳細 |
|---|---|---|---|---|---|---|
| 8 | 61.08坪 | 応相談(応相談) | 応相談 | 2026年3月上旬 |
…新着物件
京橋山本ビルのアクセス
京橋山本ビルの物件情報
京橋山本ビル(中央区京橋)は宝町駅(A1番出口)から徒歩1分の賃貸オフィスです。東京駅からも徒歩10分で、大変便利な立地になっております。昭和通りに面した角地に建つ窓の多いデザインのビルで、南と西に開けた立地で、採光の良さが期待できます。61.08坪の基準階は、正方形に近い柱が邪魔をしない配置になっていて、レイアウトしやすい間取りになっています。室外に男女別トイレと給湯室がついていて、2015年にリニューアル済みです。ワンフロアーワンテナントなので、専用状態で使えます。京橋山本ビルは宝町駅(A1番出口)の他に京橋駅(4番出口)徒歩4分、銀座一丁目駅(10番出口)徒歩6分で利用も可能です。

