銀座和田ビル 10階
物件概要
物件番号
634-00533-41物件名
銀座和田ビル所在地
- 東京都中央区銀座1-14-7
- アクセスマップ
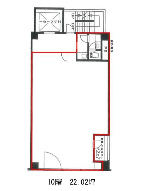
面積
22.02坪賃料(共益費含)
:応相談応相談
入居日
2026年7月上旬保証金
応相談礼金
なし更新料
新1ケ月償却費
なし竣工
1985年7月構造
SRC規模
地上10階/地下1階トイレ
男女共用空調
個別空調エレベーター
有セキュリティ
有駐車場
無耐震
新耐震基準基準階天井高
2320mm空室延床面積
22.02坪情報更新日
2026/01/15銀座和田ビルのテナント募集中区画
| 階数 | 面積 | 賃料(共益費含む) | 保証金 | 入居可能日 | 検討リスト | 詳細 |
|---|---|---|---|---|---|---|
| 10 | 22.02坪 | 応相談(応相談) | 応相談 | 2026年7月上旬 |
…新着物件
アクセス
銀座和田ビルの物件情報
銀座和田ビル(中央区銀座)は銀座一丁目駅(11番出口)から徒歩2分の賃貸オフィスです。銀座和田ビルは銀座一丁目駅(11番出口)の他に宝町駅(A3番出口)徒歩4分、東銀座駅(A8番出口)徒歩4分で利用も可能です。

