東京華僑商工聨合会館 4階
物件概要
物件番号
634-00746-30物件名
東京華僑商工聨合会館所在地
- 東京都中央区銀座6-13-6
- アクセスマップ
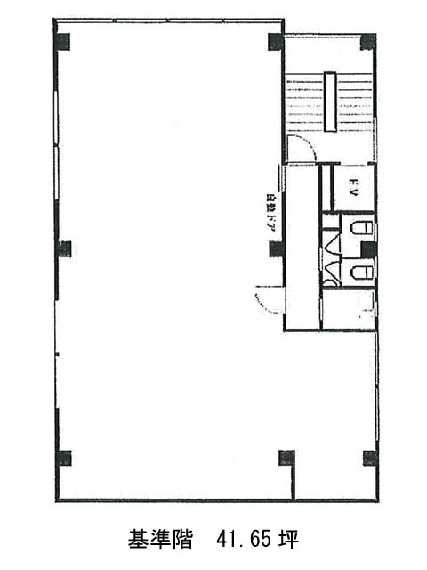
面積
41.65坪賃料(共益費含)
月額824,670円(19,800円/坪)
入居日
即保証金
7,497,000円礼金
なし更新料
なし償却費
1ケ月竣工
1969年6月構造
RC規模
地上5階/地下1階トイレ
男女共用空調
個別空調エレベーター
有セキュリティ
有駐車場
無耐震
旧耐震基準基準階天井高
空室延床面積
41.65坪情報更新日
2026/01/14東京華僑商工聨合会館のテナント募集中区画
| 階数 | 面積 | 賃料(共益費含む) | 保証金 | 入居可能日 | 検討リスト | 詳細 |
|---|---|---|---|---|---|---|
| 4 | 41.65坪 | 824,670円/月(19,800円/坪) | 749万円 | 即 |
…新着物件
アクセス
東京華僑商工聨合会館の物件情報
東京華僑商工聨合会館(中央区銀座)は東銀座駅(A1番出口)から徒歩3分の賃貸オフィスです。外観は、全体的にベージュを基調としており、とても落ち着いた印象があります。周辺には、コンビニや飲食店などが複数あるためとても利便性が高いです。またビルの1Fにも飲食店が入っているため、休憩時などに活用しやすいでしょう。ビル内のトイレは男女別となっており、駐車場はありませんが、近くにパーキングがあるため、社用車を使う場合も便利です。基準階は約41坪あり、室内は長方形の整形オフィスのため、効率の良いレイアウトが組めそうです。東京華僑商工聨合会館は東銀座駅(A1番出口)の他に銀座駅(A5番出口)徒歩5分、銀座一丁目駅(11番出口)徒歩8分で利用も可能です。

