4階は現在募集がありません
3フロア募集区画あり

ビリーヴ新富 4階

前の写真 次の写真

物件概要

物件番号

638-00043-40

物件名

ビリーヴ新富

所在地

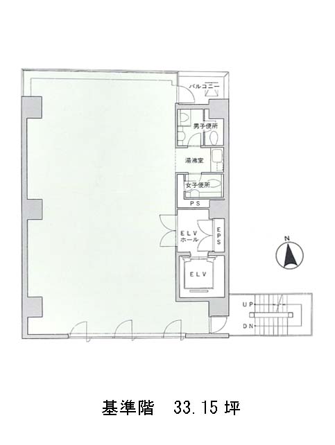
面積

33.15坪

賃料(共益費含)


入居日

募集終了

保証金

礼金

更新料

償却費

竣工

1995年3月

構造

規模

地上10階

トイレ

男女別

空調

個別空調

エレベーター

セキュリティ

駐車場

耐震

新耐震基準

基準階天井高

空室延床面積

99.45坪

最寄駅

情報更新日

2025/11/17

ビリーヴ新富のテナント募集中区画

階数 面積 賃料(共益費含む) 保証金 入居可能日 検討リスト 詳細
2 33.15坪 546,975円/月(16,500円/坪) 298万円 2025年12月上旬
3 33.15坪 546,975円/月(16,500円/坪) 298万円 2025年12月上旬
9 33.15坪 546,975円/月(16,500円/坪) 298万円 2025年12月上旬
…新着物件

アクセス

ビリーヴ新富の物件情報

ビリーヴ新富(中央区新富)は八丁堀駅(A3番出口)から徒歩2分の賃貸オフィスです。
ビリーヴ新富は八丁堀駅(A3番出口)の他に新富町駅(5番出口)徒歩6分、宝町駅(A2番出口)徒歩7分で利用も可能です。

近隣のエリア・駅から探す