9階は現在募集がありません
櫻正宗東日本橋ビル 9階
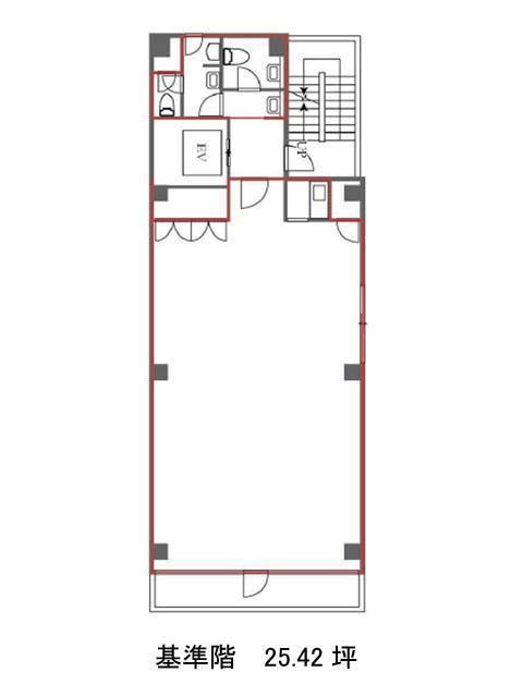
物件概要
櫻正宗東日本橋ビルのテナント募集中区画
現在、空室がございません。
櫻正宗東日本橋ビルのアクセス
櫻正宗東日本橋ビルの物件情報
櫻正宗東日本橋ビル(中央区東日本橋)は東日本橋駅(B3番出口)から徒歩2分の賃貸オフィスです。櫻正宗東日本橋ビルは東日本橋駅(B3番出口)の他に馬喰横山駅(A4番出口)徒歩3分、馬喰町駅(5番出口)徒歩4分で利用も可能です。

