6階は現在募集がありません
秋山ビル 6階
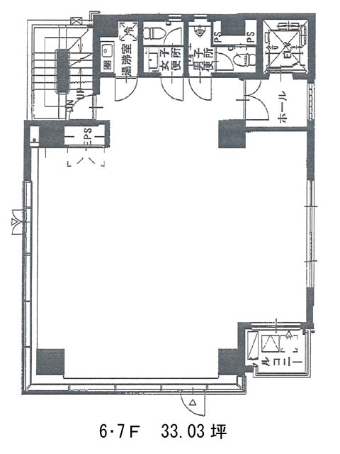
物件概要
秋山ビルのテナント募集中区画
現在、空室がございません。
秋山ビルのアクセス
秋山ビルの物件情報
秋山ビル(中央区東日本橋)は東日本橋駅(出口)から徒歩4分の賃貸オフィスです。秋山ビルは東日本橋駅(出口)の他に馬喰町駅(5番出口)徒歩4分、馬喰横山駅(A4番出口)徒歩5分で利用も可能です。

