樋口本店ビル 6階
物件概要
物件番号
646-00125-50物件名
樋口本店ビル所在地
- 東京都中央区日本橋茅場町1-12-2
- アクセスマップ
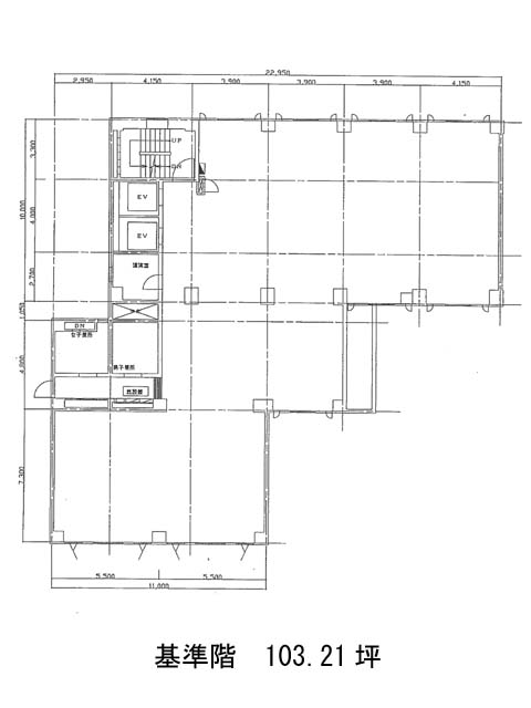
面積
103.21坪賃料(共益費含)
:応相談応相談
入居日
即保証金
応相談礼金
なし更新料
なし償却費
なし竣工
1986年4月構造
SRC規模
地上9階/地下1階トイレ
男女別空調
個別空調エレベーター
有セキュリティ
有駐車場
有耐震
新耐震基準基準階天井高
2550mm空室延床面積
103.21坪情報更新日
2026/01/14樋口本店ビルのテナント募集中区画
| 階数 | 面積 | 賃料(共益費含む) | 保証金 | 入居可能日 | 検討リスト | 詳細 |
|---|---|---|---|---|---|---|
| 6 | 103.21坪 | 応相談(応相談) | 応相談 | 即 |
…新着物件
樋口本店ビルのアクセス
樋口本店ビルの物件情報
樋口本店ビル(中央区日本橋茅場町)は茅場町駅(出口)から徒歩1分の賃貸オフィスです。外観は全体的に赤茶のレンガ調をベースに並んだ窓がとてもオシャレでデザイン性が高いものとなっております。エントランスホールも白の大理石の壁面に、赤のカーペットがとても高級感を感じられる空間に仕上がっております。周辺には、コンビニや飲食店、金融機関などが複数あるためとても利便性が高いです。またビルの1Fにもカフェが入っているため、休憩時などに活用しやすいでしょう。ビル内のトイレは男女別となっており、駐車場もあるため、社用車を使う場合も便利です。樋口本店ビルは茅場町駅(出口)の他に八丁堀駅(A4番出口)徒歩7分、日本橋駅(D1番出口)徒歩7分で利用も可能です。

