小伝馬町YSビル 2階
物件概要
物件番号
650-00066-10物件名
小伝馬町YSビル所在地
- 東京都中央区日本橋小伝馬町12-5
- アクセスマップ
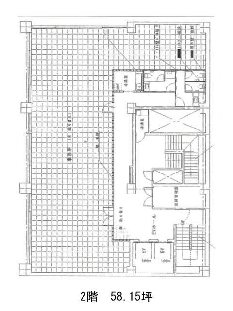
面積
58.15坪賃料(共益費含)
月額895,510円(15,400円/坪)
入居日
即保証金
5,815,000円礼金
なし更新料
新1ケ月償却費
2ケ月竣工
1973年6月構造
SRC規模
地上9階/地下1階トイレ
男女別空調
個別空調エレベーター
有セキュリティ
有駐車場
無耐震
耐震補強済み基準階天井高
2800mm空室延床面積
58.15坪情報更新日
2026/02/19小伝馬町YSビルのテナント募集中区画
| 階数 | 面積 | 賃料(共益費含む) | 保証金 | 入居可能日 | 検討リスト | 詳細 |
|---|---|---|---|---|---|---|
| 2 | 58.15坪 | 895,510円/月(15,400円/坪) | 581万円 | 即 |
…新着物件
小伝馬町YSビルのアクセス
小伝馬町YSビルの物件情報
小伝馬町YSビル(中央区日本橋小伝馬町)は小伝馬町駅(1番出口)から徒歩1分の賃貸オフィスです。エントランスやトイレ、空調設備がリニューアルされており、築年数を感じさせない清潔感があり、耐震補強工事も完了しております。間取りは整形な無柱空間で、レイアウトがしやすいでしょう。水まわりやEV等の共用部が一部に集約されており、天井高2800㎜の開放感のある室内でしょう。設備としてEV2基・貸室外の男女別トイレ・湯沸室・非常階段2箇所があり個別空調が導入されています。オフィスビルで賑わう場所に立地し、徒歩圏内にコンビニ・銀行等普段使いできる店舗が多くあります。小伝馬町YSビルは小伝馬町駅(1番出口)の他に馬喰町駅(2番出口)徒歩5分、新日本橋駅(5番出口)徒歩6分で利用も可能です。

