6階は現在募集がありません
1フロア募集区画あり

小伝馬町YSビル 6階

前の写真 次の写真

物件概要

物件番号

650-00066-70

物件名

小伝馬町YSビル

所在地

面積

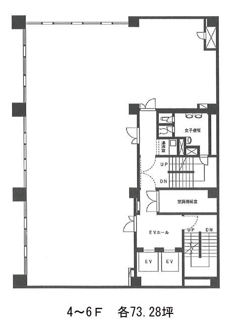
73.28坪

賃料(共益費含)


入居日

募集終了

保証金

礼金

更新料

償却費

竣工

1973年6月

構造

SRC

規模

地上9階/地下1階

トイレ

男女別

空調

個別空調

エレベーター

セキュリティ

駐車場

耐震

耐震補強済み

基準階天井高

2800mm

空室延床面積

58.15坪

最寄駅

情報更新日

2026/02/19

小伝馬町YSビルのテナント募集中区画

階数 面積 賃料(共益費含む) 保証金 入居可能日 検討リスト 詳細
2 58.15坪 895,510円/月(15,400円/坪) 581万円
…新着物件

小伝馬町YSビルのアクセス

小伝馬町YSビルの物件情報

小伝馬町YSビル(中央区日本橋小伝馬町)は小伝馬町駅(1番出口)から徒歩1分の賃貸オフィスです。
エントランスやトイレ、空調設備がリニューアルされており、築年数を感じさせない清潔感があり、耐震補強工事も完了しております。間取りは整形な無柱空間で、レイアウトがしやすいでしょう。水まわりやEV等の共用部が一部に集約されており、天井高2800㎜の開放感のある室内でしょう。設備としてEV2基・貸室外の男女別トイレ・湯沸室・非常階段2箇所があり個別空調が導入されています。オフィスビルで賑わう場所に立地し、徒歩圏内にコンビニ・銀行等普段使いできる店舗が多くあります。
小伝馬町YSビルは小伝馬町駅(1番出口)の他に馬喰町駅(2番出口)徒歩5分、新日本橋駅(5番出口)徒歩6分で利用も可能です。

近隣のエリア・駅から探す