フジノビル 6階
物件概要
物件番号
650-00073-50物件名
フジノビル所在地
- 東京都中央区日本橋小伝馬町15-18
- アクセスマップ
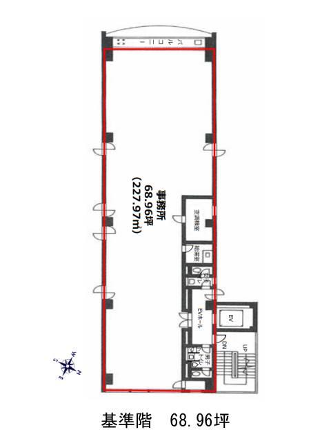
面積
68.96坪賃料(共益費含)
:応相談応相談
入居日
2026年6月保証金
応相談礼金
なし更新料
なし償却費
2ケ月竣工
1987年2月構造
SRC規模
地上9階トイレ
男女別空調
個別空調エレベーター
有セキュリティ
駐車場
有耐震
新耐震基準基準階天井高
2500mm空室延床面積
137.92坪情報更新日
2025/12/12フジノビルのテナント募集中区画
| 階数 | 面積 | 賃料(共益費含む) | 保証金 | 入居可能日 | 検討リスト | 詳細 |
|---|---|---|---|---|---|---|
| 5 | 68.96坪 | 応相談(応相談) | 応相談 | 即 | ||
| 6 | 68.96坪 | 応相談(応相談) | 応相談 | 2026年6月 |
…新着物件
アクセス
フジノビルの物件情報
フジノビル(中央区日本橋小伝馬町)は小伝馬町駅(2番出口)から徒歩3分の賃貸オフィスです。外観はシルバーを基調としており、すっきりとした印象。エントランスの開口部が広くとられており、ビル全体の雰囲気を明るく演出しています。
エレベーターホールにはアート装飾が施されており、ビルにさりげないアクセントを添えています。シンプルながらも印象に残るポイントのひとつです。
貸室は約69坪で、間取りは縦長の整形タイプ。バルコニーが設けられており、外気を取り込めるちょっとしたリフレッシュにも役立ちます。室内には柱の張り出しも少なく、使い勝手のよさが感じられるつくりです。フジノビルは小伝馬町駅(2番出口)の他に馬喰町駅(2番出口)徒歩3分、馬喰横山駅(A1番出口)徒歩5分で利用も可能です。

