マツモトビル 5階
物件概要
物件番号
653-00021-134物件名
マツモトビル所在地
- 東京都中央区日本橋大伝馬町14-15
- アクセスマップ
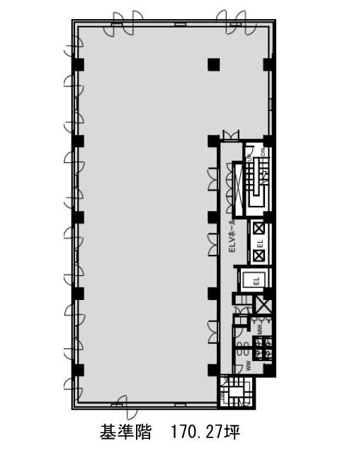
面積
170.27坪賃料(共益費含)
:応相談応相談
入居日
相談保証金
応相談礼金
なし更新料
なし償却費
なし竣工
1991年8月構造
SRC規模
地上9階/地下2階トイレ
男女別空調
個別空調エレベーター
有セキュリティ
有駐車場
有耐震
新耐震基準基準階天井高
2600mm空室延床面積
681.08坪情報更新日
2025/11/04マツモトビルのテナント募集中区画
| 階数 | 面積 | 賃料(共益費含む) | 保証金 | 入居可能日 | 検討リスト | 詳細 |
|---|---|---|---|---|---|---|
| 5 | 170.27坪 | 応相談(応相談) | 応相談 | 相談 | ||
| 6 | 170.27坪 | 応相談(応相談) | 応相談 | 相談 | ||
| 7 | 170.27坪 | 応相談(応相談) | 応相談 | 相談 | ||
| 8 | 170.27坪 | 応相談(応相談) | 応相談 | 即 |
…新着物件
マツモトビルのアクセス
マツモトビルの物件情報
マツモトビル(中央区日本橋大伝馬町)は馬喰町駅(2番出口)から徒歩3分の賃貸オフィスです。外観は全体的に落ち着いた色を基調としており、窓がライン状に並んでいるため、統一感があります。エントランスホールは広々としており、とても落ち着いた空間となっております。基準階は約150坪あり、室内は長方形の整形オフィスのため、効率の良いレイアウトが組めそうです。ビル内にはOAフロアが備えられており、トイレは男女別となっております。駐車場もあるため、社用車を使う場合も便利です。また周辺にはコンビニや飲食店、郵便局、銀行などが複数あるためとても利便性が高いです。マツモトビルは馬喰町駅(2番出口)の他に馬喰横山駅(A1番出口)徒歩3分、小伝馬町駅(1番出口)徒歩4分で利用も可能です。

