4階は現在募集がありません
4フロア募集区画あり

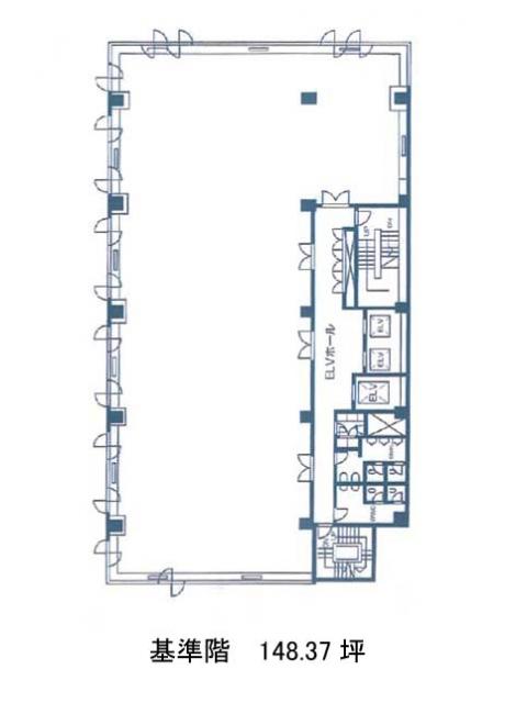
マツモトビル 4階

前の写真 次の写真

物件概要

物件番号

653-00021-40

物件名

マツモトビル

所在地

面積

148.37坪

賃料(共益費含)


入居日

募集終了

保証金

礼金

更新料

償却費

竣工

1991年8月

構造

SRC

規模

地上9階/地下2階

トイレ

男女別

空調

個別空調

エレベーター

セキュリティ

駐車場

耐震

新耐震基準

基準階天井高

2600mm

空室延床面積

681.08坪

最寄駅

情報更新日

2025/11/04

マツモトビルのテナント募集中区画

階数 面積 賃料(共益費含む) 保証金 入居可能日 検討リスト 詳細
5 170.27坪 応相談(応相談) 応相談 相談
6 170.27坪 応相談(応相談) 応相談 相談
7 170.27坪 応相談(応相談) 応相談 相談
8 170.27坪 応相談(応相談) 応相談
…新着物件

マツモトビルのアクセス

マツモトビルの物件情報

マツモトビル(中央区日本橋大伝馬町)は馬喰町駅(2番出口)から徒歩3分の賃貸オフィスです。
外観は全体的に落ち着いた色を基調としており、窓がライン状に並んでいるため、統一感があります。エントランスホールは広々としており、とても落ち着いた空間となっております。基準階は約150坪あり、室内は長方形の整形オフィスのため、効率の良いレイアウトが組めそうです。ビル内にはOAフロアが備えられており、トイレは男女別となっております。駐車場もあるため、社用車を使う場合も便利です。また周辺にはコンビニや飲食店、郵便局、銀行などが複数あるためとても利便性が高いです。
マツモトビルは馬喰町駅(2番出口)の他に馬喰横山駅(A1番出口)徒歩3分、小伝馬町駅(1番出口)徒歩4分で利用も可能です。

近隣のエリア・駅から探す