弘報ビルのテナント募集中区画
| 階数 | 面積 | 賃料(共益費含む) | 保証金 | 入居可能日 | 検討リスト | 詳細 |
|---|---|---|---|---|---|---|
| 3 | 57.01坪 | 815,243円/月(14,300円/坪) | 592万円 | 即 |
…新着物件
アクセス
弘報ビルの物件情報
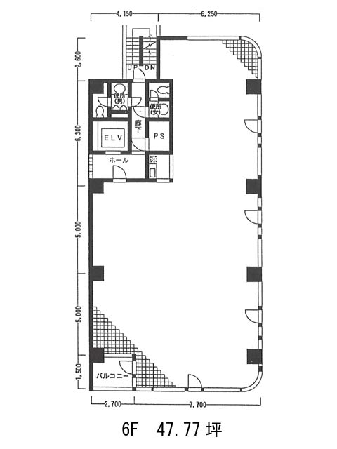
弘報ビル(中央区入船)は八丁堀駅(出口)から徒歩3分の賃貸オフィスです。外観は全体的にグレーを基調としており、窓ガラスがライン状に並んでいるため、統一性のある印象を受けます。エントランスホールやエレベーターホールはとても落ち着いた空間となっております。また周辺には、コンビニや飲食店、金融機関、郵便局などが複数あるため利便性が高いです。ビル内のトイレは男女別となっており、駐車場もあるため、社用車を使う場合も便利です。基準階は約57坪あり、室内はほぼ長方形の形をしているため、比較的レイアウトは組みやすいでしょう。弘報ビルは八丁堀駅(出口)の他に新富町駅(7番出口)徒歩5分、築地駅(3番出口)徒歩8分で利用も可能です。

