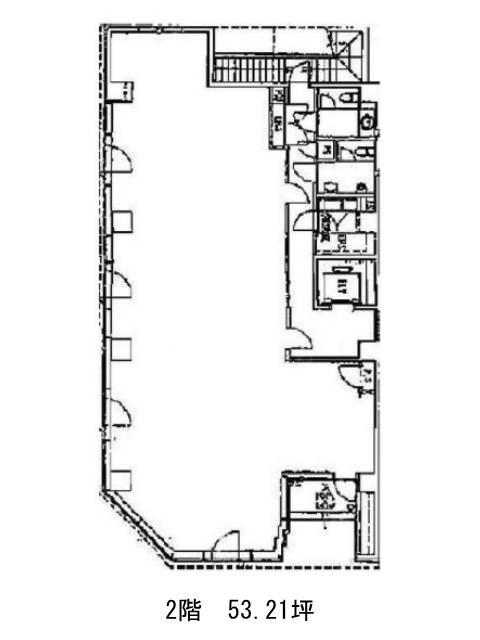
2階は現在募集がありません
ザ・ロワイヤルビル 2階
物件概要
ザ・ロワイヤルビルのテナント募集中区画
現在、空室がございません。
ザ・ロワイヤルビルのアクセス
ザ・ロワイヤルビルの物件情報
ザ・ロワイヤルビル(中央区入船)は新富町駅(7番出口)から徒歩4分の賃貸オフィスです。外観は白のパネル張りで、1Fはガラスウォールが美しい建物です。エントランスホールやエレベーターホールは石造りになっているため、とても重厚感があります。また周辺には、コンビニや飲食店などが複数あるためとても利便性が高いです。ビル内のトイレは男女別となっており、駐車場はありませんが、近くにパーキングがあるため、社用車を使う場合も便利です。基準階は約60坪あり、室内はほぼ長方形の形をしているため、比較的レイアウトは組みやすいでしょう。ザ・ロワイヤルビルは新富町駅(7番出口)の他に築地駅(3番出口)徒歩7分、八丁堀駅(出口)徒歩7分で利用も可能です。

