京橋北見ビル東館のテナント募集中区画
| 階数 | 面積 | 賃料(共益費含む) | 保証金 | 入居可能日 | 検討リスト | 詳細 |
|---|---|---|---|---|---|---|
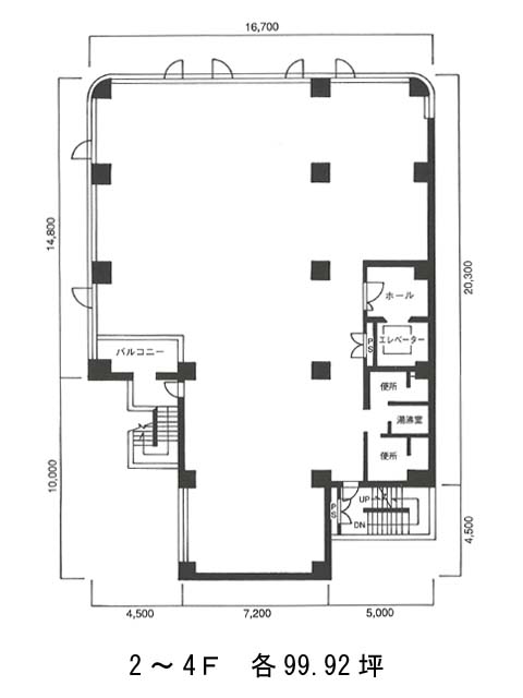
| 3 | 102.51坪 | 1,781,623円/月(17,380円/坪) | 1,476万円 | 2026年2月上旬 | ||
| 5 | 65.85坪 | 1,144,470円/月(17,380円/坪) | 790万円 | 2025年12月中旬 |
…新着物件
アクセス
京橋北見ビル東館の物件情報
京橋北見ビル東館(中央区八丁堀)は宝町駅(A8番出口)から徒歩3分の賃貸オフィスです。グレーの壁面で重厚感のある、地上8階建のオフィスビルです。エントランスは御影石を使用し、落ち着いた雰囲気をしています。設備として男女別トイレ・湯沸室・非常階段2箇所・個別空調があり、床は配線がしやすいOAフロアとなります。機械警備が導入され、24時間使用可能なオフィスです。周辺もオフィスビルの多いエリアで、郵便局・コンビニ・飲食店等使用頻度の高い施設が揃っています。住所は八丁堀3丁目となります。京橋北見ビル東館は宝町駅(A8番出口)の他に八丁堀駅(A3番出口)徒歩5分、京橋駅(4番出口)徒歩6分で利用も可能です。

