3階 3Aは現在募集がありません
2フロア募集区画あり

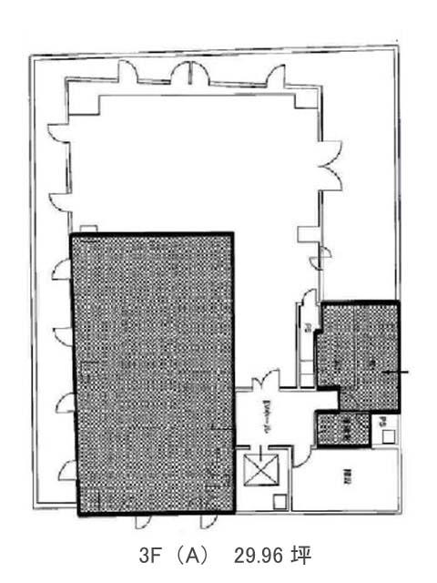
ACN八丁堀ビル 3階 3A

前の写真 次の写真

物件概要

物件番号

668-00018-112

物件名

ACN八丁堀ビル

所在地

面積

29.96坪

賃料(共益費含)


入居日

募集終了

保証金

礼金

更新料

償却費

竣工

1993年3月

構造

S造

規模

地上8階

トイレ

男女別

空調

個別空調

エレベーター

セキュリティ

駐車場

耐震

新耐震基準

基準階天井高

2430mm

空室延床面積

134.00坪

最寄駅

情報更新日

2026/01/13

ACN八丁堀ビルのテナント募集中区画

階数 面積 賃料(共益費含む) 保証金 入居可能日 検討リスト 詳細
5 67.00坪 1,105,500円/月(16,500円/坪) 804万円
8 67.00坪 応相談(応相談) 応相談
…新着物件

アクセス

ACN八丁堀ビルの物件情報

ACN八丁堀ビル(中央区湊)は八丁堀駅(B3番出口)から徒歩5分の賃貸オフィスです。
1993年竣工、地上8階建てS造のビルです。窓面が多く、室内に十分な採光が取り込めるでしょう。基準階面積約67坪。支柱が中央に無い為、オフィス家具やデスクのレイアウトがしやすいでしょう。設備仕様として、EV1基・湯沸室・非常階段1箇所・貸室外の男女別トイレ・OAフロア・個別空調・機械警備がそろいます。2016年にリニューアルが実施されています。
ACN八丁堀ビルは八丁堀駅(B3番出口)の他に新富町駅(7番出口)徒歩8分、茅場町駅(1番出口)徒歩11分で利用も可能です。

近隣のエリア・駅から探す