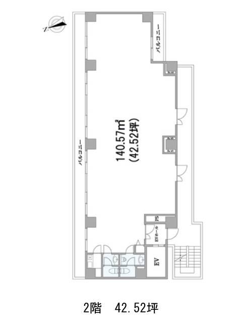
日昇ビル 2階
物件概要
日昇ビルのテナント募集中区画
| 階数 | 面積 | 賃料(共益費含む) | 保証金 | 入居可能日 | 検討リスト | 詳細 |
|---|---|---|---|---|---|---|
| 2 | 42.52坪 | 693,022円/月(16,298円/坪) | 599万円 | 即 | ||
| 3 | 42.52坪 | 693,022円/月(16,298円/坪) | 599万円 | 即 |
…新着物件
日昇ビルのアクセス
日昇ビルの物件情報
日昇ビル(品川区大崎)は大崎駅(新東口)から徒歩7分の賃貸オフィスです。日昇ビルは大崎駅(新東口)の他に新馬場駅(北口)徒歩13分、北品川駅(出口)徒歩13分で利用も可能です。

