6階は現在募集がありません
1フロア募集区画あり

五反田中央ビル 6階

前の写真 次の写真

物件概要

物件番号

761-00056-80

物件名

五反田中央ビル

所在地

面積

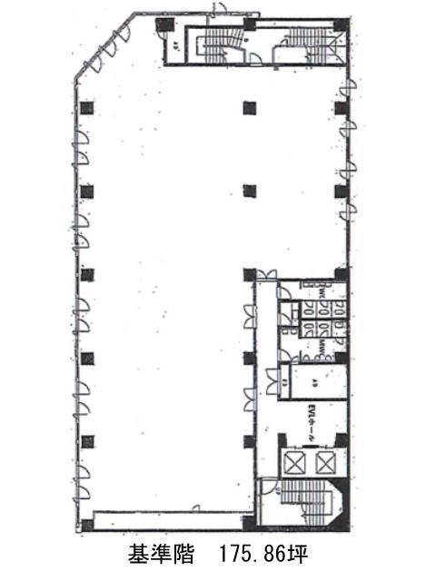
175.86坪

賃料(共益費含)


入居日

募集終了

保証金

礼金

更新料

償却費

竣工

1976年7月

構造

SRC

規模

地上9階/地下1階

トイレ

男女別

空調

個別空調

エレベーター

セキュリティ

駐車場

耐震

耐震補強済み

基準階天井高

空室延床面積

106.81坪

最寄駅

情報更新日

2026/02/13

五反田中央ビルのテナント募集中区画

階数 面積 賃料(共益費含む) 保証金 入居可能日 検討リスト 詳細
7 106.81坪 2,349,820円/月(22,000円/坪) 2,050万円
…新着物件

五反田中央ビルのアクセス

五反田中央ビルの物件情報

五反田中央ビル(品川区東五反田)は五反田駅(出口)から徒歩4分の賃貸オフィスです。
五反田中央ビルは五反田駅(出口)の他に大崎広小路駅(出口)徒歩8分、大崎駅(東口)徒歩10分で利用も可能です。

近隣のエリア・駅から探す