ビックナインビルのテナント募集中区画
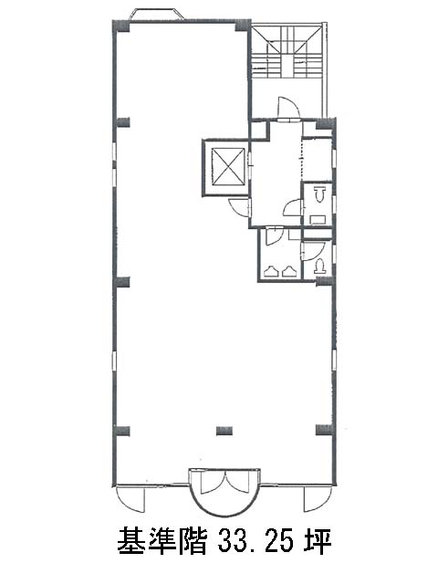
| 階数 | 面積 | 賃料(共益費含む) | 保証金 | 入居可能日 | 検討リスト | 詳細 |
|---|---|---|---|---|---|---|
| 5 | 33.25坪 | 621,775円/月(18,700円/坪) | 282万円 | 即 |
…新着物件
アクセス
ビックナインビルの物件情報
ビックナインビル(品川区東五反田)は五反田駅(出口)から徒歩4分の賃貸オフィスです。ビックナインビルは五反田駅(出口)の他に大崎広小路駅(出口)徒歩8分、大崎駅(東口)徒歩10分で利用も可能です。

