3階 301Aは現在募集がありません
2フロア募集区画あり

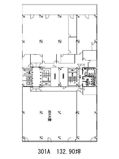
東池袋セントラルプレイス 3階 301A

前の写真 次の写真

物件概要

物件番号

805-00380-17

物件名

東池袋セントラルプレイス

所在地

面積

132.90坪

賃料(共益費含)


入居日

募集終了

保証金

礼金

更新料

償却費

竣工

1984年9月

構造

SRC

規模

地上7階/地下1階

トイレ

男女別

空調

個別空調

エレベーター

セキュリティ

駐車場

耐震

新耐震基準

基準階天井高

空室延床面積

224.87坪

最寄駅

情報更新日

2026/01/21

東池袋セントラルプレイスのテナント募集中区画

階数 面積 賃料(共益費含む) 保証金 入居可能日 検討リスト 詳細
3 51.84坪 応相談(応相談) 応相談
3 173.03坪 応相談(応相談) 応相談
…新着物件

アクセス

東池袋セントラルプレイスの物件情報

東池袋セントラルプレイス(豊島区東池袋)は向原駅(停留所)から徒歩6分の賃貸オフィスです。
1984年竣工、地上7階地下1階建てSRC造のビルです。新耐震基準に適合しています。白い外壁の中央部分が黒く塗り分けられれおり、視認性の高い外観をしています。基準階面積は354坪です。フロアの中央にある共用部をはさみ、2箇所に貸し室が配置されています。設備仕様としてEV・空調・非常階段2箇所・OAフロア・貸室外の男女別トイレがあります。近隣にコンビニやミニスーパーがあり、ランチにご利用頂けるでしょう。
東池袋セントラルプレイスは向原駅(停留所)の他に東池袋駅(7番出口)徒歩9分、大塚駅(南口)徒歩11分で利用も可能です。

近隣のエリア・駅から探す