東池袋セントラルプレイス 3階 301C
物件概要
物件番号
805-00380-23物件名
東池袋セントラルプレイス所在地
- 東京都豊島区東池袋3-22-17
- アクセスマップ
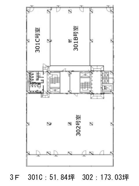
面積
51.84坪賃料(共益費含)
:応相談応相談
入居日
即保証金
応相談礼金
なし更新料
なし償却費
なし竣工
1984年9月構造
SRC規模
地上7階/地下1階トイレ
男女別空調
個別空調エレベーター
有セキュリティ
駐車場
無耐震
新耐震基準基準階天井高
空室延床面積
224.87坪情報更新日
2025/12/18東池袋セントラルプレイスのテナント募集中区画
| 階数 | 面積 | 賃料(共益費含む) | 保証金 | 入居可能日 | 検討リスト | 詳細 |
|---|---|---|---|---|---|---|
| 3 | 51.84坪 | 応相談(応相談) | 応相談 | 即 | ||
| 3 | 173.03坪 | 応相談(応相談) | 応相談 | 即 |
…新着物件
アクセス
東池袋セントラルプレイスの物件情報
東池袋セントラルプレイス(豊島区東池袋)は向原駅(停留所)から徒歩6分の賃貸オフィスです。1984年竣工、地上7階地下1階建てSRC造のビルです。新耐震基準に適合しています。白い外壁の中央部分が黒く塗り分けられれおり、視認性の高い外観をしています。基準階面積は354坪です。フロアの中央にある共用部をはさみ、2箇所に貸し室が配置されています。設備仕様としてEV・空調・非常階段2箇所・OAフロア・貸室外の男女別トイレがあります。近隣にコンビニやミニスーパーがあり、ランチにご利用頂けるでしょう。東池袋セントラルプレイスは向原駅(停留所)の他に東池袋駅(7番出口)徒歩9分、大塚駅(南口)徒歩11分で利用も可能です。

