8階は現在募集がありません
2フロア募集区画あり

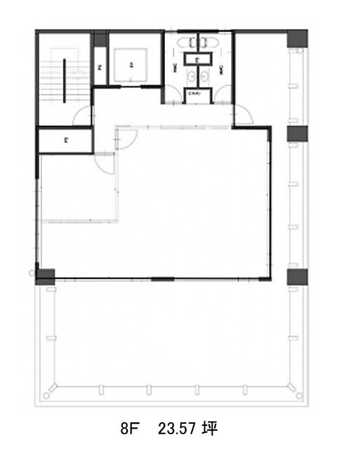
ユニティ池袋 8階

前の写真 次の写真

物件概要

物件番号

807-00151-40

物件名

ユニティ池袋

所在地

面積

23.57坪

賃料(共益費含)


入居日

募集終了

保証金

礼金

更新料

償却費

竣工

1990年7月

構造

S造

規模

地上8階/地下1階

トイレ

男女別

空調

個別空調

エレベーター

セキュリティ

駐車場

耐震

新耐震基準

基準階天井高

2500mm

空室延床面積

93.42坪

最寄駅

情報更新日

2025/12/01

ユニティ池袋のテナント募集中区画

階数 面積 賃料(共益費含む) 保証金 入居可能日 検討リスト 詳細
6 49.12坪 1,404,832円/月(28,600円/坪) 応相談 相談
7 44.30坪 1,266,980円/月(28,600円/坪) 応相談 2026年4月下旬
…新着物件

アクセス

ユニティ池袋の物件情報

ユニティ池袋(豊島区南池袋)は東池袋駅(1番出口)から徒歩4分の賃貸オフィスです。
1990年竣工、新耐震基準を満たす鉄骨造の地上8階、地下1階建てのビルです。リニューアル工事済みで共用部は清潔感のある雰囲気、室内の仕切りがガラス面となります。トイレは男女別、エレベーターは1基、OAフロア、空調は個別空調です。基準階は約49坪、貸室内は整形オフィスのためレイアウトの自由度が高いでしょう。また、窓面が広いため開放感があり、十分な採光も望めそうです。ビル周辺には、区役所やコンビニ、徒歩圏内には複数の飲食店があり利便性が高いです。
ユニティ池袋は東池袋駅(1番出口)の他に池袋駅(39番出口)徒歩6分、都電雑司ヶ谷駅(停留所)徒歩6分で利用も可能です。

近隣のエリア・駅から探す