ユニティ池袋 6階
物件概要
物件番号
807-00151-41物件名
ユニティ池袋所在地
- 東京都豊島区南池袋2-35-4
- アクセスマップ
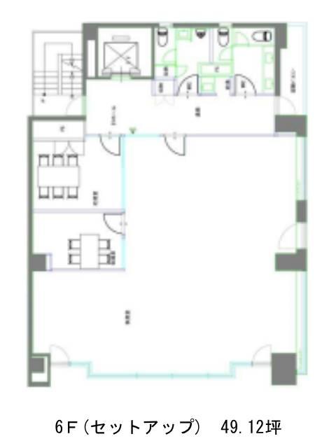
面積
49.12坪賃料(共益費含)
月額1,404,832円(28,600円/坪)
入居日
相談保証金
応相談礼金
なし更新料
なし償却費
なし竣工
1990年7月構造
S造規模
地上8階/地下1階トイレ
男女別空調
個別空調エレベーター
有セキュリティ
有駐車場
有耐震
新耐震基準基準階天井高
2500mm空室延床面積
93.42坪情報更新日
2025/12/01ユニティ池袋のテナント募集中区画
| 階数 | 面積 | 賃料(共益費含む) | 保証金 | 入居可能日 | 検討リスト | 詳細 |
|---|---|---|---|---|---|---|
| 6 | 49.12坪 | 1,404,832円/月(28,600円/坪) | 応相談 | 相談 | ||
| 7 | 44.30坪 | 1,266,980円/月(28,600円/坪) | 応相談 | 2026年4月下旬 |
…新着物件
アクセス
ユニティ池袋の物件情報
ユニティ池袋(豊島区南池袋)は東池袋駅(1番出口)から徒歩4分の賃貸オフィスです。1990年竣工、新耐震基準を満たす鉄骨造の地上8階、地下1階建てのビルです。リニューアル工事済みで共用部は清潔感のある雰囲気、室内の仕切りがガラス面となります。トイレは男女別、エレベーターは1基、OAフロア、空調は個別空調です。基準階は約49坪、貸室内は整形オフィスのためレイアウトの自由度が高いでしょう。また、窓面が広いため開放感があり、十分な採光も望めそうです。ビル周辺には、区役所やコンビニ、徒歩圏内には複数の飲食店があり利便性が高いです。ユニティ池袋は東池袋駅(1番出口)の他に池袋駅(39番出口)徒歩6分、都電雑司ヶ谷駅(停留所)徒歩6分で利用も可能です。

