I&Kビルのテナント募集中区画
| 階数 | 面積 | 賃料(共益費含む) | 保証金 | 入居可能日 | 検討リスト | 詳細 |
|---|---|---|---|---|---|---|
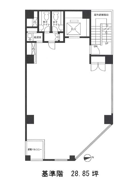
| 5 | 28.85坪 | 952,050円/月(33,000円/坪) | 1,350万円 | 即 | ||
| 7 | 28.85坪 | 952,050円/月(33,000円/坪) | 1,350万円 | 即 | ||
| 9 | 28.85坪 | 952,050円/月(33,000円/坪) | 1,350万円 | 即 |
…新着物件
アクセス
I&Kビルの物件情報
I&Kビル(豊島区南池袋)は池袋駅(西武南口)から徒歩3分の賃貸オフィスです。I&Kビルは池袋駅(西武南口)の他に東池袋駅(1番出口)徒歩9分、都電雑司ヶ谷駅(停留所)徒歩11分で利用も可能です。

