8階は現在募集がありません
雷電ビル 8階


物件概要
雷電ビルのテナント募集中区画
現在、空室がございません。
アクセス
雷電ビルの物件情報
雷電ビル(墨田区両国)は両国駅(東口)から徒歩2分の賃貸オフィスです。
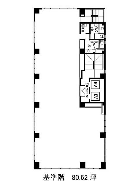
1993年竣工、地上10階建てSRC造のビルです。ミラーガラス貼りのスタイリッシュな外観が特徴です。基準階面積は80.62坪。中規模の事務所をお探しの方に良いでしょう。支柱が中央に無い長方形の間取りは、オフィス家具のレイアウトがしやすいでしょう。EV2基・給湯室・個別空調・OAフロア・貸室外の男女別トイレといった設備仕様をしています。1フロア1テナントでプライバシー性の高い執務ができるでしょう。事務所は24時間利用可能です。
雷電ビルは両国駅(東口)の他に馬喰町駅(5番出口)徒歩13分、浅草橋駅(A1番出口)徒歩13分で利用も可能です。