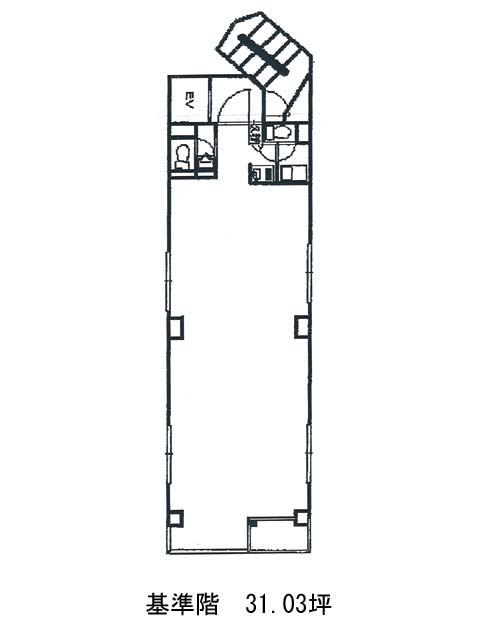
中目黒TDビル 6階
物件概要
中目黒TDビルのテナント募集中区画
| 階数 | 面積 | 賃料(共益費含む) | 保証金 | 入居可能日 | 検討リスト | 詳細 |
|---|---|---|---|---|---|---|
| 6 | 31.03坪 | 511,995円/月(16,500円/坪) | 297万円 | 即 |
…新着物件
アクセス
中目黒TDビルの物件情報
中目黒TDビル(目黒区中目黒)は中目黒駅(出口)から徒歩10分の賃貸オフィスです。中目黒TDビルは中目黒駅(出口)の他に恵比寿駅(5番出口)徒歩14分、代官山駅(正面口)徒歩15分で利用も可能です。

