第一榎ビルのテナント募集中区画
| 階数 | 面積 | 賃料(共益費含む) | 保証金 | 入居可能日 | 検討リスト | 詳細 |
|---|---|---|---|---|---|---|
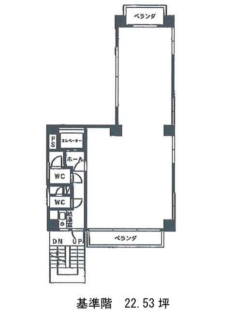
| 4 | 22.53坪 | 408,919円/月(18,150円/坪) | 310万円 | 即 |
…新着物件
アクセス
第一榎ビルの物件情報
第一榎ビル(港区虎ノ門)は神谷町駅(4A番出口)から徒歩2分の賃貸オフィスです。第一榎ビルは神谷町駅(4A番出口)の他に虎ノ門ヒルズ駅(A1番出口)徒歩8分、六本木一丁目駅(2番出口)徒歩9分で利用も可能です。

