第一榎ビル 4階
物件概要
物件番号
122-00270-40物件名
第一榎ビル所在地
- 東京都港区虎ノ門5-3-1
- アクセスマップ
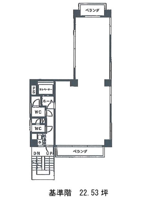
面積
22.53坪賃料(共益費含)
月額408,919円(18,150円/坪)
入居日
即保証金
3,109,140円礼金
なし更新料
新1ケ月償却費
2ケ月竣工
1975年10月構造
RC規模
地上5階トイレ
男女別空調
個別空調エレベーター
有セキュリティ
有駐車場
有耐震
旧耐震基準基準階天井高
空室延床面積
22.53坪情報更新日
2026/01/26第一榎ビルのテナント募集中区画
| 階数 | 面積 | 賃料(共益費含む) | 保証金 | 入居可能日 | 検討リスト | 詳細 |
|---|---|---|---|---|---|---|
| 4 | 22.53坪 | 408,919円/月(18,150円/坪) | 310万円 | 即 |
…新着物件
第一榎ビルのアクセス
第一榎ビルの物件情報
第一榎ビル(港区虎ノ門)は神谷町駅(4A番出口)から徒歩2分の賃貸オフィスです。第一榎ビルは神谷町駅(4A番出口)の他に虎ノ門ヒルズ駅(A1番出口)徒歩8分、六本木一丁目駅(2番出口)徒歩9分で利用も可能です。

