山田ビル 1階
物件概要
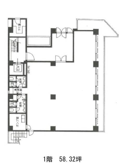
山田ビルのテナント募集中区画
| 階数 | 面積 | 賃料(共益費含む) | 保証金 | 入居可能日 | 検討リスト | 詳細 |
|---|---|---|---|---|---|---|
| 1 | 58.32坪 | 1,026,432円/月(17,600円/坪) | 489万円 | 即 |
…新着物件
山田ビルのアクセス
山田ビルの物件情報
山田ビル(港区芝浦)は田町駅(芝浦口)から徒歩6分の賃貸オフィスです。白を基調にした外観が印象的なこちらのビルは、交差点角地の立地を活かし、採光や視界の抜け感に恵まれた開放的な環境です。最寄り駅からは少し歩きますが、一本道でアクセスできるため道順は明快。来訪者への案内もスムーズです。基準階は約100坪超の広さがあり、室内には柱があるものの、OAフロア仕様かつ水回りが端にまとまっているため、会議室や執務エリアのゾーニングも比較的しやすい構造です。エントランスには石庭が設けられており、ちょっとした和の趣が訪れる人に落ち着きを与えてくれます。周辺は芝浦運河が近く、都心でありながら静けさを感じられる穏やかなビジネスエリア。じっくり腰を据えて働きたい企業にとって、バランスの取れた物件です。山田ビルは田町駅(芝浦口)の他に三田駅(A4番出口)徒歩9分、芝浦ふ頭駅(西口)徒歩12分で利用も可能です。

