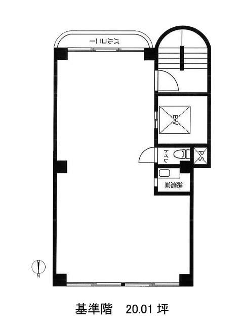
デリス第2ビルのテナント募集中区画
| 階数 | 面積 | 賃料(共益費含む) | 保証金 | 入居可能日 | 検討リスト | 詳細 |
|---|---|---|---|---|---|---|
| 3 | 20.01坪 | 473,000円/月(23,639円/坪) | 246万円 | 即 | ||
| 5 | 20.01坪 | 467,503円/月(23,364円/坪) | 243万円 | 即 |
…新着物件
アクセス
デリス第2ビルの物件情報
デリス第2ビル(渋谷区恵比寿)は恵比寿駅(東口)から徒歩5分の賃貸オフィスです。デリス第2ビルは恵比寿駅(東口)の他に広尾駅(2番出口)徒歩14分、代官山駅(東口)徒歩14分で利用も可能です。

