7階は現在募集がありません
恵比寿NRビル 7階
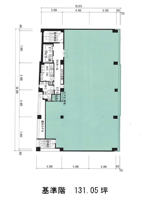
物件概要
恵比寿NRビルのテナント募集中区画
現在、空室がございません。
恵比寿NRビルのアクセス
恵比寿NRビルの物件情報
恵比寿NRビル(渋谷区恵比寿)は恵比寿駅(東口)から徒歩6分の賃貸オフィスです。恵比寿NRビルは恵比寿駅(東口)の他に広尾駅(2番出口)徒歩13分で利用も可能です。

