7階は現在募集がありません
1フロア募集区画あり

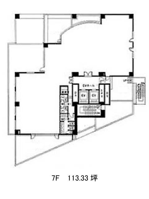
広尾MTRビル 7階

前の写真 次の写真

物件概要

物件番号

159-00002-110

物件名

広尾MTRビル

所在地

面積

113.33坪

賃料(共益費含)


入居日

募集終了

保証金

礼金

更新料

償却費

竣工

1992年11月

構造

SRC

規模

地上7階/地下1階

トイレ

男女別

空調

個別空調

エレベーター

セキュリティ

駐車場

耐震

新耐震基準

基準階天井高

2600mm

空室延床面積

186.65坪

最寄駅

情報更新日

2026/03/03

広尾MTRビルのテナント募集中区画

階数 面積 賃料(共益費含む) 保証金 入居可能日 検討リスト 詳細
4 186.65坪 応相談(応相談) 応相談 2026年7月上旬
…新着物件

広尾MTRビルのアクセス

広尾MTRビルの物件情報

広尾MTRビル(渋谷区恵比寿)は広尾駅(1番出口)から徒歩8分の賃貸オフィスです。
1992年竣工、外苑西通りに面する地上7階建てです。外観はグレーの石彫です。ビルの一角にデザインされたアウトフレームが印象的で、視認性にも優れています。吹き抜けのエントランスは奥行きのあるつくりで、高級感が感じられます。フロア全体はL字型の無柱空間ですので、レイアウト効率が良いでしょう。設備面はエレベーター2基、個別空調、室外の男女別トイレが備えられ、また、セキュリティに機械警備を採用しています。併設の駐車場をご利用になればお車の利用も可能です。ビルの近くにコンビニや薬局がありますので、ちょっとしたお買い物に便利です。また、周辺に数多く営業する飲食店を、ランチの度にめぐってみるのも楽しいでしょう。
広尾MTRビルは広尾駅(1番出口)の他に白金台駅(1番出口)徒歩15分で利用も可能です。

近隣のエリア・駅から探す