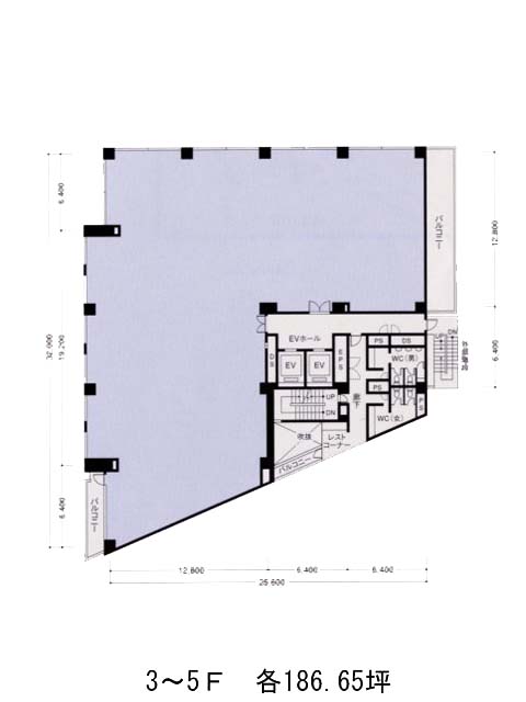
広尾MTRビル 4階
物件概要
広尾MTRビルのテナント募集中区画
| 階数 | 面積 | 賃料(共益費含む) | 保証金 | 入居可能日 | 検討リスト | 詳細 |
|---|---|---|---|---|---|---|
| 4 | 186.65坪 | 応相談(応相談) | 応相談 | 2026年7月上旬 |
…新着物件
広尾MTRビルのアクセス
広尾MTRビルの物件情報
広尾MTRビル(渋谷区恵比寿)は広尾駅(1番出口)から徒歩8分の賃貸オフィスです。1992年竣工、外苑西通りに面する地上7階建てです。外観はグレーの石彫です。ビルの一角にデザインされたアウトフレームが印象的で、視認性にも優れています。吹き抜けのエントランスは奥行きのあるつくりで、高級感が感じられます。フロア全体はL字型の無柱空間ですので、レイアウト効率が良いでしょう。設備面はエレベーター2基、個別空調、室外の男女別トイレが備えられ、また、セキュリティに機械警備を採用しています。併設の駐車場をご利用になればお車の利用も可能です。ビルの近くにコンビニや薬局がありますので、ちょっとしたお買い物に便利です。また、周辺に数多く営業する飲食店を、ランチの度にめぐってみるのも楽しいでしょう。広尾MTRビルは広尾駅(1番出口)の他に白金台駅(1番出口)徒歩15分で利用も可能です。

